منطقة الممر البيئي - لامبرسارت
مدينة الممر
كان هناك عنصران أساسيان في الموقع يوجهان التصميم: التراث الطبيعي للموقع وقربه من محطة مترو Pont Supérieur.
الممر البيئي وتراث الأشجار والعمارة الخضراء:
السياق الإقليمي: تشير الخريطة الديناميكية لـ PLU2 إلى أن الممر الذي سيتم تعزيزه أو تطويره يتجسد على طول الحد الغربي للموقع، أي على طول خط السكة الحديدية. تم تسجيل التشجير الموجود في الاستمرارية الجنوبية لمنطقة الدراسة إلى الشمال من المسار الأخضر باعتباره "أدوات لحماية وحفظ عناصر المناظر الطبيعية والبيئة" بالإضافة إلى مناطق الحدائق الضواحي المشجرة إلى الغرب من خط السكة الحديدية بين شارع برايل وشارع 8 مايو 1945 وإلى الشرق من محيط مشروع شارع فلاندرز. يربط الممر البيئي بين المقبرة ذات المناظر الطبيعية في أورمس وغرب منطقة ليل باتجاه سيكيدين عبر الغابات المحيطة بشبكات السكك الحديدية.
محطة مترو بون سوبيريور: إن وجود محطة مترو بون سوبيريور إلى الجنوب من المشروع دفعنا إلى اقتراح إنشاء حديقة للمشاة خطية من الشمال إلى الجنوب من أجل تعزيز جودة المناظر الطبيعية وتشجيع الناس على عبور الموقع نحو المحطة.
يهدف المشروع إلى زيادة استخدام المترو لجميع سكان لامبيرسارت من شارع الهيبودروم إلى شارع دونكيرك. خلال النهار، سيكون من الممكن أيضًا القيام بجولة جوية في مظلة الأشجار التي يمكن للأشخاص ذوي الحركة المحدودة الوصول إليها في قمم الأشجار. ستعمل المناظر البعيدة تجاه برج الجرس في ليل على تعزيز الطابع الحضري للمشروع الذي صممه فريق من مصممي المناظر الطبيعية كنموذج تجريبي للمدينة المرنة.
مفهوم المناظر الطبيعية والاستراتيجية الحضرية:
يتم الحفاظ على جميع الأشجار الموجودة في الموقع من قبل المشروع. تم نقل كافة المواضيع الصغيرة إلى العمارة الخضراء لتعزيز دور الممر البيئي للمشروع.
يهدف المشروع إلى توفير نوعية حياة أفضل للسكان المحليين.
يسمح إعادة التخطيط المقترح بإنشاء حديقة خطية كبيرة تمتد من الشمال إلى الجنوب ولا توجد مباني مجاورة للمساكن القائمة. يتيح هذا التصنيف إمكانية تقديم مباني ذات مناظر طبيعية عالية الجودة تفتح باتجاه الجنوب على حديقة ذات مناظر طبيعية.
نقترح إنشاء مباني ذات مناظر طبيعية على شكل درجات ومنحدرات ذات مناظر طبيعية خلف الممر البيئي مما سيوفر حاجزًا للضوضاء للسكان المحليين والحديقة العامة الجديدة. يسمح التصميم المعماري الأخضر، الذي يستمر على طول الشريط المشجر للجسر، بإنشاء تراسات مشتركة يمكن للجميع الوصول إليها، وتحيط بها النباتات.
يتميز مدخل حديقة المظلة بمبنى من الطوب الجميل من التراث الصناعي الذي قررنا ترميمه لاستيعاب المتاجر المحلية ومطعم مخصص للترحيب بالأطفال ويفتح على الحديقة. تسمح هذه الاستراتيجية الحضرية "الموجودة بالفعل هناك" بإدراج المشروع في استمرارية تاريخ المكان في منطق الاقتصاد في الوسائل.
صُمم المشروع ليشكل ممرًا بيولوجيًا خطيًا متعدد الأطر، مدعومًا بأسوار مشجرة على جسور السكك الحديدية. ويتكون من تشجير في أرض مفتوحة غربًا لتعزيز التشجير الحالي. تتكون لوحة النباتات من نباتات محلية، تتكون من Acer pseudoplatanus، وQuercus petraea، وCrataegus monogyna، وPrunus spinosa، وغيرها، والأراضي الرطبة داخل إطار، والمروج الجافة المحبة للجفاف على سفوح الهياكل النباتية. تم دمج الهندسة المعمارية في بيئة الممر الحيوي باستخدام مواد الحي المكونة من الطوب.
وبالتالي فإن الأهداف المعلنة للمشروع هي تعزيز الطبيعة في المدينة، وضمان قبول الكثافة الحضرية وفقًا لـ SCOT:
- تحسين البيئة المعيشية وتوفير وسائل الراحة للسكان؛
- الحفاظ على التنوع البيولوجي واستعادته؛
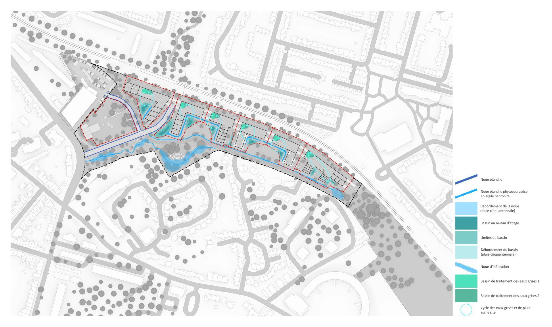
- إدارة مياه الأمطار؛
- إدارة المناخات الحضرية المحلية (ولا سيما ظاهرة الجزر الحرارية)؛
- تحسين جودة الهواء.
حركة مرور سلسة
تم تصميم المشروع لإنشاء طرق مرورية لطيفة إلى المناطق السكنية المجاورة لشارع Evrard de Frioul، وشارع Chemin Vert، وشارع la Ferme Lelong حتى شارع Hippodrome لتشجيع استخدام المترو إلى محطة Pont Supérieur.
من أجل تأهيل وتقصير المسارات، وإعطاء الأولوية للمشاة وراكبي الدراجات ووسائل النقل الناعمة، يتم توفير وصول المركبات إلى السكن أسفل المباني بفضل مسار مشترك بعرض 6 أمتار. سيتم تقييد حركة المرور الآلية على تسلسل الدخول الشرقي والغربي لشارع بونتي والذي سيتم تعريفه كمساحة مشتركة في منطقة 20 كم. سيكون سطح الطريق على نفس ارتفاع مناطق المشاة المغطاة بسطح معدني خفيف.
يتم مشاركة مسار إدارة الإطفاء مع خدمة محطات المساهمة التطوعية الموجودة في الحديقة ذات المناظر الطبيعية. ومن أجل الحفاظ على كامل تراث الأشجار في الموقع، سيتم دراسة مسار الطريق وارتفاعه بالتفصيل.
LIDL: من أجل الحد من حركة المرور في الموقع وتخصيصه لحديقة للأطفال، نقترح إعادة تصميم موقف سيارات LIDL قليلاً بحيث يتم تقديم الخدمة له مباشرة من شارع Bonte. يظل هذا الموقع الاختياري ذا جودة عالية بالنسبة لمركز التسوق المفتوح على الحديقة.
يمكن دراسة إنشاء جسر للمشاة فوق مواقف السيارات إلى الجنوب مع السكن. سيتم إغلاق هذه الأرض في الليل وسيخضع ذلك لاتفاق مع المدينة.
جولة المظلة الحضرية:
تتمثل الخطة الأساسية في إنشاء تراسات يمكن الوصول إليها بسهولة على جميع الأسطح الخضراء للمباني الجديدة. تساعد هذه المساحات المشتركة على تعزيز التماسك الاجتماعي في المباني. كخيار، نقترح إنشاء ممرات صغيرة بين المباني من أجل إنشاء ممر جوي في المظلة يمكن الوصول إليه للأشخاص ذوي الحركة المحدودة. ستعمل المناظر البعيدة تجاه برج الجرس في ليل على تعزيز الطابع الحضري للمشروع، كما أن المناظر للمناطق الحرجية المجاورة ستكون بمثابة أصل لجودة الحياة.





















