Quartier corridor écologique - Lambersart
Ville corridor
Deux éléments centraux du site ont guidé la conception, le patrimoine naturel du site et la proximité avec la station de métro de Pont Supérieur.
Le corridor écologique, patrimoine arboré et architectures végétalisées :
Contexte territorial : La cartographie dynamique du PLU2 indique qu’un corridor à conforter ou à développer est matérialisé le long de la limite Ouest du site soit le long de la voie ferrée. Le boisement présent en continuité Sud de la zone d’étudeau au nord du chemin vert est inscrit en tant qu’«outils de protection et de préservation des éléments paysager et environnementaux » ainsi que les zones des jardins pavillonnaires boisées à l’ouest de la voie ferrée entre la rue Braille et la rue du 8 mai 1945 et à l’est de périmètre du projet rue des Flandres. Le corridor écologique relie le cimetière paysager d’Ormes et l’ouest de l’agglomération lilloise vers Sequedin par l’intermédiaire des boisements accompagnant les réseaux ferrés.
La station de métro Pont Supérieur : La présence de la station de métro Pont Supérieur au Sud du projet nous a conduit à proposer la création d’un parc linéaire piéton nord-sud afin de favoriser les qualités paysagères et inciter à la traversée du site vers la station.
Le projet ambitionne d’amplifier l’usage du métro pour tous les riverains lambersartois depuis l’avenue de l’Hippodrome jusqu’à l’avenue de Dunkerque. Pendant la journée, en option, il sera même possible d’emprunter une promenade aérienne dans la canopée accessible aux PHMR dans la cime des arbres. Des vues lointaines vers le beffroi de Lille renforceront le caractère métropolitain du projet conçu par une équipe de paysagiste comme un modèle expérimental de la ville résiliente.
CONCEPT PAYSAGER ET STRATEGIE URBAINE :
Tous les arbres du site sont préservés par le projet. Tous les petits sujets sont transplantés sur l'architecture végétalisée pour intensifier le rôle de corridor écologique du projet.
Le projet est conçu pour apporter une meilleure qualité de vie aux riverains.
L’épannelage proposé permet la création d’un grand parc linéaire nord-sud et il n’y a pas de constructions en contiguïté des habitations existantes. Cette typologie permet de proposer des bâtiments paysage très qualitatifs ouverts au sud sur un parc paysager.
Nous proposons la création de bâtiments paysage en gradin et en rampe paysagère adossés au corridor écologique qui permettent de constituer un écran antibruit pour les riverains et le nouveau parc public. L’architecture végétalisée en continuité de la bande boisée du talus permet de créer des terrasses communes accessibles à tous entouré de végétations.
L’entrée du parc de la canopée est marquée par le joli bâtiment en brique issu du patrimoine industriel que nous avons décidé de restaurer pour accueillir des commerces de proximité et un restaurant dédié à l’accueil des enfants et ouvert sur le parc. Cette stratégie urbaine du « déjà là » permet d’inscrire le projet dans la continuité de l’histoire du lieu dans une logique d’économie de moyens.
Le projet et conçu pour constituer un corridor biologique linéaire multitrames adossé au cordons boisé sur les talus de la voie ferré, il est constitué de boisement en pleine terre à l’ouest en renforcement des boisements existant. La palette végétale est indigène constituée d’Acer pseudoplatanus, Quercus petraea, Crataegus monogyna, Prunus spinosa…, de zones humides inscrit dans une trame, de prairies sèches xérophiles sur les pentes des architectures végétalisées. L’Architecture intégrée dans le biotope du corridor reprends les matérialités du quartier constitué par la brique.
Ainsi les objectifs affichés du projet est le renforcement de la nature en ville garant de l’acceptabilité de la densité urbaine conformément au SCOT :
- L’amélioration du cadre de vie et création d’aménités pour les habitants ;
- Le maintien et la reconquête de la biodiversité ;
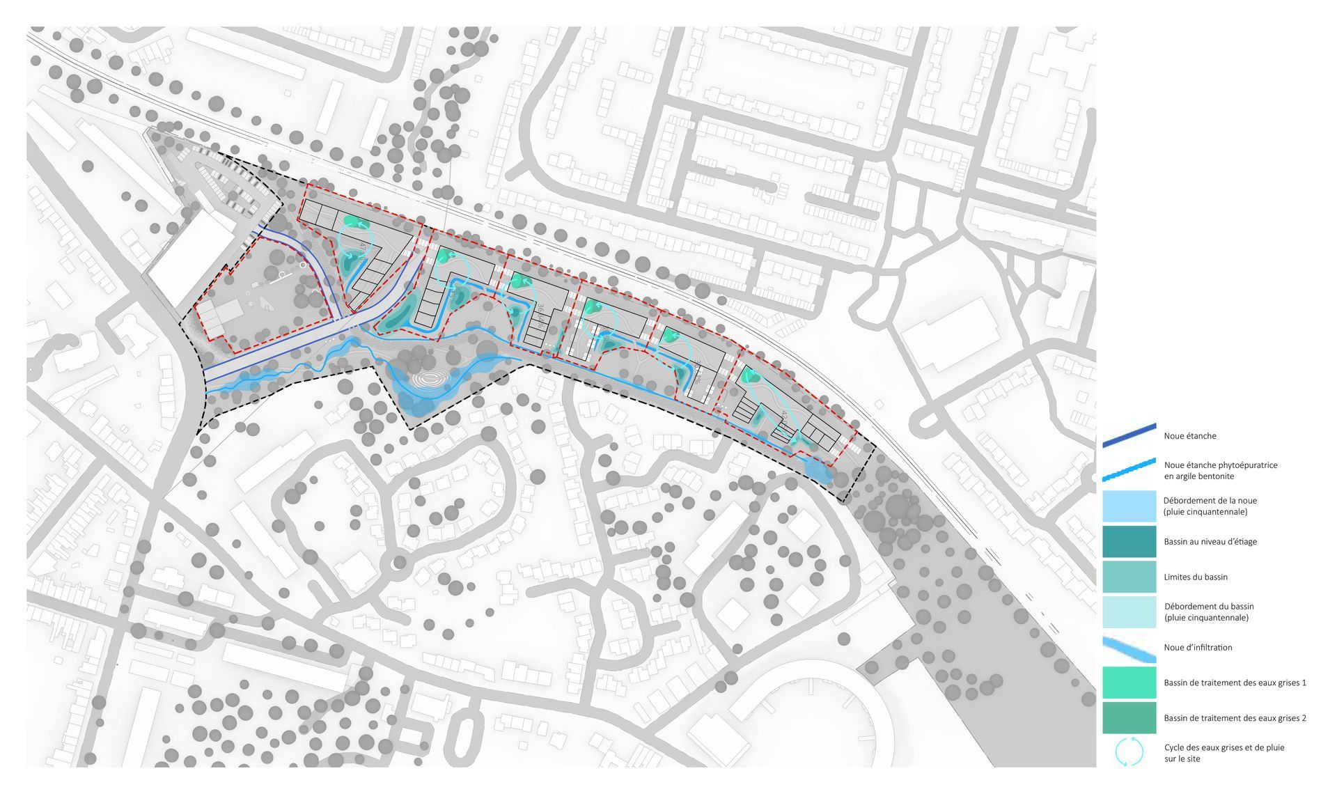
- La gestion des eaux pluviales ;
- La gestion des microclimats urbains (notamment les phénomènes d’îlots de chaleur) ;
- L’amélioration de la qualité de l’air.
CIRCULATIONS DOUCES
Le projet est conçu pour tisser des circulations douces vers les quartiers adjacents pavillonnaires rue Evrard de Frioul, rue du Chemin Vert, allée de la Ferme Lelong jusqu'à l’avenue de l’Hippodrome pour favoriser l’usage du métro vers la station de Pont Supérieur.
Afin de qualifier et de raccourcir les cheminements, pour donner la prépondérance aux piétons, aux cyclistes et aux modes doux, la desserte véhiculée des logements se fait sous les bâtiments grâce à une voie mutualisée de 6 mètres de large. Le trafic motorisé sera limité à la séquence d’entrée rue Bonte Est-ouest qui sera défini en espace partagé zone 20 km. La chaussée sera à la même altimétrie que les zones piétonnes qualifiées par un revêtement minéral clair.
La voie pompier est mutualisée avec la desserte des bornes d’apport volontaire situés dans le parc paysager. Afin de préserver l’ensemble du patrimoine arboré du site, le tracé de la voie et son altimétrie sera étudiée finement.
Le LIDL: Afin de limiter le trafic sur le site et de le dédier à un parc pour les enfants, nous proposons de redessiner légèrement le parking du LIDL afin qu’il soit desservi directement depuis la rue Bonte. Cette implantation optionnelle reste très qualitative pour le centre commercial ouvert sur le parc.
Une passerelle piétonne au-dessus des boxes des parkings au sud pourrait être étudié avec la résidence. Cette parcelle serait fermée pendant la nuit et ferait l’objet d’une convention avec la ville.
La promenade urbaine de la canopée :
Il est prévu en base de réaliser des terrasses accessibles sur toutes les toitures végétales des nouveaux bâtiments. Ces espaces partagés permettent de renforcer la cohésion sociale dans les immeubles. En option, nous proposons de réaliser de petites passerelles entre les bâtiments afin de constituer dans la canopée une promenade aérienne accessible aux PHMR. Des vues lointaines vers le beffroi de Lille renforceront le caractère métropolitain du projet et les points de vue sur les espaces boisées adjacent serait un atout pour la qualité de vie.





















